Corner
OUR PRODUCTコーナー材(出隅材)
01焼杉・コーナー材
建築物のコーナー(出隅)に用いる材料も様々に加工して出荷しています。
焼杉のそれぞれの仕上げに対応しています。
建築の収まりに合わせて物件対応もできます。
過去の事例や原板状況をもとにご提案可能ですので、お問い合わせください。
※コーナー材のみのご注文はお受けしていません。外壁板とセットでご注文ください。
02寸法・形状
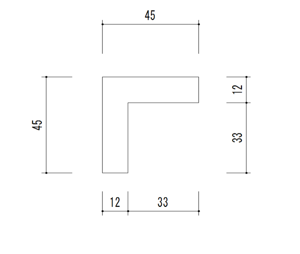
L字コーナー・かぶせるタイプ
一番スタンダードなコーナー材です。
3.0m/4.0m×45×45の寸法が基本寸法となります。


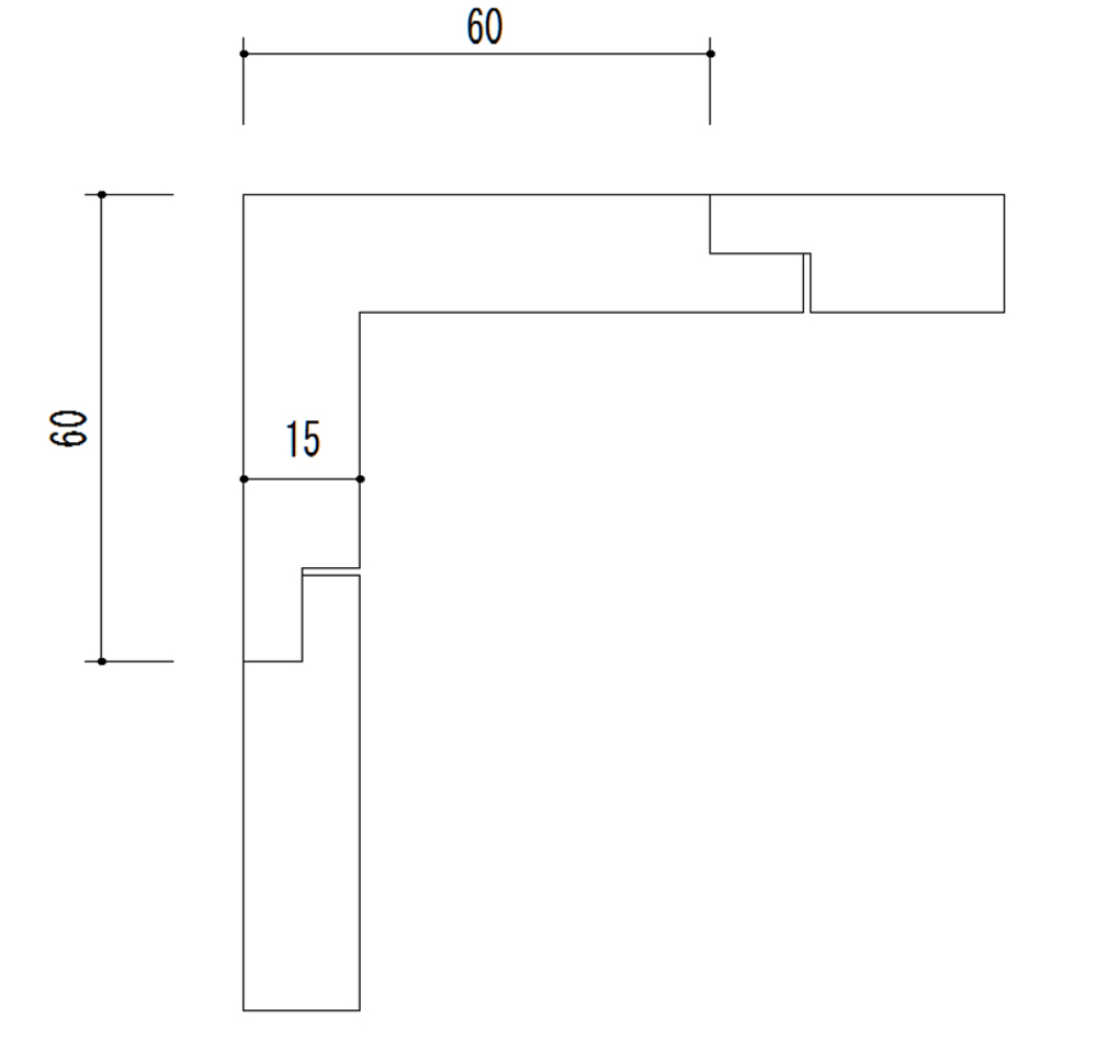
相決有タイプ

その他、詳しくはお問い合わせください。
商品を選ぶ
商品紹介
-
焼杉
-
つくるシリーズ
-
フローリング
-
内装材(パネリング)
-
外装材(サイディング)
-
合板
-
ウッドデッキ・エクステリア
-
Sioo:X(シーウー/外部用木材保護剤)
構造材・工法
-
大スパン木造
-
構造材
商品紹介
-
-
INFORMATION
- 焼杉施工要領
- いたくぎ(連結丸頭釘)
- コーナー材(出隅材)
- 焼杉 板塀・4面モダンブラック
- 焼パイン(内装用)
-
-
-
INFORMATION
- ラフソーン仕上
- 溝付(スリット)加工
- リブ仕上
- グリッド・スティック・格子
-
-
-
LIST
- 【新商品】カラマツABクリア 三層
- オークMIX
- くるみAB
- マサランデューバ(アマゾンジャラ・マニルカラ)
- イペ
- オークAB積層
- アッシュ(タモ)AB積層
- ブラックチェリーAB積層
- メープルAB積層
- ミャンマーチークAB積層
- フレンチオーク natural積層
- ラーチ(カラマツ)knotty積層
- ブラックウォルナットAB複合
- EUROオークABC積層 UV仕上※在庫限り
- EUROオークABC積層(無塗装)300幅
- オークAB 朝鮮張り用(60×15)
- ボルドーパイン
- ロシアパイン節有
- カラマツ節有
- アピトン
- 米松プランク
- カバA・AB
- メープルAB
- オークA・AB
- 杉 無節上小
-
INFORMATION
- フローリングのお手入れ
- 施工要領
-
-
-
LIST
- 暖杉
- WRC108ベベル
- WRCシングル
- WRCシェイクヘビー
-
INFORMATION
- いたくぎ(連結丸頭釘)
- 準防火地域、法22条区域に木外壁をご検討の方 「北総研防火木外壁」のご紹介
-
-
-
INFORMATION
- ランビックルーバー
- 斜め打ち-jigシステム
-
-
-
INFORMATION
- 環境にやさしい成分
- Sioo:X処理(塗布)木材のご提供について
- Sioo:Xシリコン技術について
-
構造材・工法
-
-
INFORMATION
- ネイルプレートトラス
- LVL・Iジョイスト
- その他工法
-
-
-
LIST
- 2×4コンポーネント
- 在来木造プレカット材
-
よく検索されるキーワード